Pāriet uz lapas saturu
Izvēlne
Izvēlne
Atpakaļ
Atpakaļ
Pašvaldība
Dome
Domes vadība
Deputāti
Domes sēdes
Domes sēdes tiešraides un ieraksti Youtube
Komitejas
Izglītības, kultūras, sporta un sociālā komiteja
Attīstības komiteja
Finanšu komiteja
Komisijas
Pašvaldības struktūra
Pašvaldības struktūra
Iestādes
Kapitālsabiedrības
Biedrības un nodibinājumi
Budžets
Amatpersonu un darbinieku atalgojums
Normatīvie akti
Saistošie noteikumi
Iekšējie normatīvie akti
Koncepcijas un stratēģijas
Plāni
Deleģēšanas līgumi
Lokālplānojumu un detālplānojumu apbūves noteikumi
Pašvaldības publiskais pārskats
Attīstība
Attīstības programma 2021. - 2027.
Attīstības stratēģija
Koncepcijas un stratēģijas
Teritorijas plānošana
Par teritorijas plānošanu
Teritorijas plānojums
Lokālplānojumi
Detālplānojumi
Teritorijas plānošanas nodaļas kontakti
Projekti
Aktuālie ES projekti
ES fondu īstenotie projekti
ES fondu plānotie projekti
Projekti kartē
Būvvalde
Būvvaldes kontakti
Būvniecības iesniegumi
Dokumenti būvju pieņemšanai ekspluatācijā
Grausti un vidi degradējošas būves
Adreses
Adrešu plāksnītes
Iepirkumi
Iepirkumi
Cenu aptaujas
Sūdzību sniegšana par iepirkumiem
Izsoles
Īpašumi
Vakances
Trauksmes celšana
Korupcijas novēršana un ētika
Nekustamā īpašuma nodoklis
NĪN paziņojumi
Novads
Par novadu
Vēsture
Simbolika
Ādažu novadā deklarēto iedzīvotāju priekšrocības
Starptautiskā sadraudzība
Izglītība
Jaunumi izglītībā
, Ārējā saite
Metodiskais darbs
Izglītības stratēģija
Likumi un noteikumi par izglītību
Pirmsskolas izglītība
Līdzfinansējums privātajām pirmsskolas izglītības iestādēm
Ādažu vidusskolas PII
PII Strautiņš
PII Mežavēji
Siguļu PII Piejūra
PII Riekstiņš
Privātā PII Brīvā Austras skola
Privātā PII Nēģītis
Privātā PII Pasaku valstība
Privātā PII Patnis
Privātā PII Saulespuķe
Tāmes
Vispārējā izglītība
Izglītības iestādes
Valsts pārbaudes darbi
Mācību priekšmetu olimpiādes
Profesionālās ievirzes izglītība
Ādažu novada Mākslu skola
Ādažu Bērnu un jaunatnes sporta skola
Speciālā izglītība
Speciālās izglītības programmas
Pieejamais atbalsts
Pedagoģiski medicīniskā komisija
Interešu izglītība
Aktualitātes
Konkursi, skates un kultūras pasākumi interešu izglītībā
Interešu izglītības programmu licencēšana un neformālās izglītības programmu atļauju izsniegšana
Interešu izglītības licencēto programmu finansējuma konkurss
Interešu izglītības pulciņu piedāvājums novadā
Kultūrizglītības jomu koordinatori
Izglītības projekti
Izglītojamo skaits Ādažu novada pašvaldības izglītības iestādēs
Interešu izglītības programmu licencēšanas un neformālās izglītības programmu atļauju izsniegšana
Nometnes
Nometņu programmu konkurss
Veselības veicināšanas radošās darbnīcas un nometnes
Pašvaldības līdzfinansētās nometnes
Valsts atbalsta programma Ukrainas un Latvijas bērnu un jauniešu nometnēm
Mūžizglītība
Mūžizglītības jaunumi
Iedzīvotājiem noderīga informācija par pensiju sistēmu
Pedagoģiski medicīniskā komisija
Kultūra
Ādažu Kultūras centrs
Carnikavas kultūras nams "Ozolaine"
Carnikavas Novadpētniecības centrs
Amatiermākslas kolektīvi Ādažos
, Ārējā saite
Amatiermākslas kolektīvi Carnikavā
, Ārējā saite
Ādažu bibliotēka
Elektroniskais katalogs
, Ārējā saite
Jaunākās grāmatas
Tematisko izstāžu jaunumi
Tematisko izstāžu arhīvs
Preses izdevumi
Statistika
Pasākumi
Bērnu žūrija
Bibliotēkas lietošanas noteikumi
Datoru un interneta lietošanas kārtība
Pakalpojumi
Novadpētniecība
Carnikavas bibliotēka
Sports
Jaunumi sportā
Likumi un noteikumi par sportu
Stadioni un sporta laukumi
Ādažu vidusskolas stadions
Carnikavas vidusskolas stadions
Rožu ielas sporta komplekss
Sporta un aktīvās atpūtas parks "Zibeņi"
Multifunkcionālā velotrase jeb pumpu trase
Ādažu Sporta centrs
Aerobikas zāle
Cīņu zāle
Tenisa zāle
Sporta zāle
Stadions
Baseins
Sporta iespējas novadā
Peldēšanas skola "Gauja"
Ādažu Bērnu un jaunatnes sporta skola
Ādaži Velo
BMX Ādaži
Dog Sport Carnikava
, Ārējā saite
FBK SĀC
, Ārējā saite
Futbola klubs Ādaži
KSMR Fitness
Mākslas vingrošana Grand Jete
MX Ādaži
Nūjošana
Orientēšanās klubs KĀPA
, Ārējā saite
Sporta klubs Virsotne
Biedrība Sporta klubs APEX
Tenisa centrs Ādaži
Pašvaldības atbalsts sportam
Jauniešiem
Jaunumi
BJC Ādažos un Carnikavā
Aktivitātes Bērnu un jauniešu centros Ādažos un Carnikavā
Jaunatnes speciālistu kontakti
Jauniešu dome
Dokumenti
Attīstības plāns darbam ar jaunatni 2023.- 2027. gadam
Jaunatnes lietu konsultatīvās komisijas nolikums
Jauniešu domes nolikums
Jauniešu iniciatīvu projekti
Jaunatnes iniciatīvu projektu konkurss Pumpurs mācību motivācijas palielināšanai
Skolēnu vasaras nodarbinātība
Ādažu novada jauniešu viedokļu izpēte
Tūrisms
, Ārējā saite
Ceļveži
Dabas vērtības novadā
Informācijas stendi novadā
Ādažu aktīvā meža taka
Tūrisma uzņēmējiem
Sabiedriskais transports
Uzņēmējdarbība
Noderīgi uzņēmējiem
Iepirkumi
Izsoles
Īpašumi
Uzņēmēju karte
Biedrība Ādažu uzņēmēji
, Ārējā saite
LIAA pārstāvniecība Siguldā
Uzņēmumu statistika
Mežgarciems
Jaunumi
Kur meklēt
Ādažu novada sociālais dienests
Atbalsts reemigrantiem
Veselība
Veselības centri/poliklīnikas
Ģimenes ārstu prakses
Zobārstniecība
Veselības veicināšana
Cenu aptaujas
Drošība pie un uz ūdens
, Ārējā saite
Vide
Drošība uz ūdens
Zemes dzīļu izmantošana novadā
Ezeru un upju apsaimniekošana
Asenizācijas pakalpojumu sniedzēji novadā
Atkritumu apsaimniekošana
Šķiroto atkritumu pieņemšanas laukums un šķirošanas punkti
Infrastruktūra
Ielas un ceļi
Piejūras autostāvvietas
Rotaļu un sporta laukumi novadā
Koplietošanas transportlīdzekļu ātruma ierobežojuma un novietošanas aizlieguma zonas
Cilvēki novadā
Goda novadnieks
Poligons
Pakalpojumi
E-pakalpojumi
Iesniegt rēķinus elektroniski Ādažu novada domei (uzņēmējiem/privātajiem bērnudārziem
Klientu apkalpošanas centri
Pakalpojumu veidlapas
Pašvaldības pakalpojumi
Valsts iestāžu pakalpojumi VPVKAC
Publiskā ielu tirdzniecība Ādažu novadā
Aktualitātes
Meteoroloģiskās un jūras prognozes
Jaunumi
Notikumu kalendārs
Ādažu Novada Vēstis
Pašvaldība skaidro
Aktuālākie jautājumi
Foto un video
, Ārējā saite
Sabiedrības līdzdalība
Iedzīvotāju padomes
Iedzīvotāju aptaujas
Līdzdalības iespējas
Sabiedriskās apspriešanas
Ciemu attīstības plāni
Pašvaldību vēlēšanas 2025
Tiesību aktu projekti
Parakstu vākšana - aktuālās iniciatīvas
Trauksmes celšana
Atbalsts Ukrainas iedzīvotājiem
Pārtikas un higiēnas preču pakas/Пакети продуктів харчування, пакети засобів гігієни
Ja personai nav iztikas līdzekļu
Ukrainas bēgļiem: Ja nepieciešams darbs / Де шукати підтримку в пошуку роботи?
Kontakti
Domes kontakti
Centrālās pārvaldes kontakti
Darbinieku kontakti
Iedzīvotāju padomju kontakti
Iestādes
Pašvaldības rekvizīti
Pašvaldība
Pašvaldības struktūra un kontakti, publiskie pārskati un normatīvie akti, kas regulē pašvaldības darbību.
Dome
Informācija par domes struktūru un vadību.
Domes vadība
Pašvaldības domes vadības fotogrāfija, dzīves gājuma apraksts (CV) un kontaktinformācija.
Deputāti
Informācija par pašvaldības domes deputātiem un viņu atbildības jomām, kā arī viņu kontaktinformācija un fotogrāfijas.
Domes sēdes
Domes sēžu darba kārtība, sēžu ieraksti un protokoli. Iedzīvotāji un citas personas var piedalīties domes un komiteju sēdēs, izņemot tādā sēdē vai tās daļā, kas pasludināta par slēgtu. Piedaloties klātienes sēdē, personai ir jāreģistrējas pie sēdes sekretāra, uzrādot personu apliecinošu dokumentu. Attālināti sēdi var klausīties pašvaldības youtube.com…
Domes sēdes tiešraides un ieraksti Youtube
Komitejas
Pašvaldības komitejas un to sastāvs.
Izglītības, kultūras, sporta un sociālā komiteja
Attīstības komiteja
Finanšu komiteja
Komisijas
Pašvaldības komisijas un to sastāvs.
Pašvaldības struktūra
Pašvaldības struktūra, Centrālā pārvalde un tās pakļautībā esošās struktūrvienības.
Pašvaldības struktūra
Iestādes
Dažādi saistītie juridiskie atzari pašvaldībā.
Kapitālsabiedrības
Informācija par pašvaldības kapitālsabiedrībām.
Biedrības un nodibinājumi
Informācija par biedrībām un nodibinājumiem, kurās pašvaldība ir dibinātājs vai biedrs.
Budžets
Informācija par budžeta ienākumiem, plānotajiem izdevumiem un darba samaksas sadalījumu atbilstoši amatu grupām.
Amatpersonu un darbinieku atalgojums
Informācija par amatpersonu un dabinieku atalgojumu.
Normatīvie akti
Iestādes darbību regulējošie tiesību akti.
Saistošie noteikumi
Iekšējie normatīvie akti
Koncepcijas un stratēģijas
Pašvaldības koncepcijas un stratēģijas.
Plāni
Informācija par plāniem.
Deleģēšanas līgumi
Informācija par deleģēšanas līgumiem.
Lokālplānojumu un detālplānojumu apbūves noteikumi
Publicēti lokālplānojumu un detālplānojumu apbūves noteikumi.
Pašvaldības publiskais pārskats
Informatīvs dokuments ar mērķi sniegt vispusīgu informāciju par pašvaldības paveikto pilsētas ekonomiskās un sociālās attīstības nodrošināšanā.
Attīstība
Investīciju iespējas pašvaldībā, aktuālie un plānotie remontdarbi, kā arī noderīgi dokumenti.
Attīstības programma 2021. - 2027.
Apstiprināta Attīstības programma 2021.-2027.gadam.
Attīstības stratēģija
Apstiprināta 2021.gadā aktualizētā Stratēģija.
Koncepcijas un stratēģijas
Pašvaldības koncepcijas un stratēģijas.
Teritorijas plānošana
Viss par teritorijas plānošanu novadā.
Par teritorijas plānošanu
Teritorijas plānojums
Lokālplānojumi
Detālplānojumi
Teritorijas plānošanas nodaļas kontakti
Projekti
Aktuālie un jau pabeigtie projekti.
Aktuālie ES projekti
ES projekti, kas tiek īstenoti
ES fondu īstenotie projekti
Īstenotie ES fondu projekti.
ES fondu plānotie projekti
Plānotie ES fondu projekti.
Projekti kartē
Būvvalde
Informācija par būvvaldi, plānoto būvniecību pašvaldībā un būvniecību saistošā dokumentācija.
Būvvaldes kontakti
Būvvaldes kontaktinformācija.
Būvniecības iesniegumi
Būvniecības iesniegumu veidlapas.
Dokumenti būvju pieņemšanai ekspluatācijā
Informācija par dokumentiem būvju pieņemšanai ekspluatācijā.
Grausti un vidi degradējošas būves
Informācija par vidi degradējošām būvēm un graustiem.
Adreses
Informācija par mainītajām adresēm novadā .
Adrešu plāksnītes
Informācija par prasībām adrešu plāksnēm.
Iepirkumi
Informācija par plānotajiem, aktuālajiem un noslēgtajiem iepirkumiem, to dokumentācija, kā arī iepirkumu līgumi.
Iepirkumi
Cenu aptaujas
Sūdzību sniegšana par iepirkumiem
Izsoles
Informācija par pašvaldības izsludinātajām izsolēm.
Īpašumi
Vakances
Informācija par aktuālajām vakancēm un amatu konkursiem iestādē.
Trauksmes celšana
Saskaņā ar Trauksmes celšanas likumu ikvienam ir tiesības celt trauksmi publiskajā un privātajā sektorā par darba vidē novērotu sabiedrības interešu apdraudējumu.
Korupcijas novēršana un ētika
Informācija par to, kā pašvaldībā tiek nodrošināti korupcijas novēršanas pasākumi.
Nekustamā īpašuma nodoklis
Informācija par nekustamā īpašuma nodokli.
NĪN paziņojumi
Informācija par nekustamā īpašuma nodokļa aprēķina administratīvajiem aktiem, brīdinājumi un izpildrīkojumi par administratīvā akta piespiedu izpildi un lēmumi par nokavēto nodokļu maksājuma piedziņu.
Novads
Informācija par novada vēsturi un attīstību, aktualitātēm un iespējām dažādās jomās.
Par novadu
Vispārīga informācija par novadu/pilsētu.
Vēsture
Ieskats Ādažu vēsturē.
Simbolika
Ģerboņa vēsturiskā attīstība un lietošanas iespējas.
Ādažu novadā deklarēto iedzīvotāju priekšrocības
Informācija par novadā deklarēto iedzīvotāju priekšrocībām.
Starptautiskā sadraudzība
Izglītība
Formālās, neformālās un interešu izglītības iespējas novadā.
Jaunumi izglītībā
Jaunākās un aktuālākās ziņas par izglītību Ādažu novadā.
, Ārējā saite
Metodiskais darbs
Izglītības stratēģija
Ādažu novada izglītības stratēģija 2023. - 2027.
Likumi un noteikumi par izglītību
Likumi un noteikumi par izglītību.
Pirmsskolas izglītība
Informācija par pirmsskolas izglītības iestādēm.
Līdzfinansējums privātajām pirmsskolas izglītības iestādēm
Ādažu vidusskolas PII
PII Strautiņš
PII Mežavēji
Siguļu PII Piejūra
PII Riekstiņš
Privātā PII Brīvā Austras skola
Privātā PII Nēģītis
Privātā PII Pasaku valstība
Privātā PII Patnis
Privātā PII Saulespuķe
Tāmes
Vispārējā izglītība
Informācija par vispārējās izglītības iespējām novadā.
Izglītības iestādes
Valsts pārbaudes darbi
Mācību priekšmetu olimpiādes
Profesionālās ievirzes izglītība
Ādažu novada Mākslu skola
Ādažu Bērnu un jaunatnes sporta skola
Speciālā izglītība
Speciālās izglītības programmas
Pieejamais atbalsts
Pedagoģiski medicīniskā komisija
Interešu izglītība
Informācija par interešu izglītības pakalpojumu sniedzējiem novadā.
Aktualitātes
Konkursi, skates un kultūras pasākumi interešu izglītībā
Interešu izglītības programmu licencēšana un neformālās izglītības programmu atļauju izsniegšana
Interešu izglītības licencēto programmu finansējuma konkurss
Interešu izglītības pulciņu piedāvājums novadā
Kultūrizglītības jomu koordinatori
Izglītības projekti
Izglītojamo skaits Ādažu novada pašvaldības izglītības iestādēs
Interešu izglītības programmu licencēšanas un neformālās izglītības programmu atļauju izsniegšana
Informācija par interešu izglītības programmu licencēšanu un neformālās izglītības programmu atļauju izsniegšanu
Nometnes
Informācija par bērnu un jauniešu nometnēm.
Nometņu programmu konkurss
Veselības veicināšanas radošās darbnīcas un nometnes
Pašvaldības līdzfinansētās nometnes
Valsts atbalsta programma Ukrainas un Latvijas bērnu un jauniešu nometnēm
Mūžizglītība
Informācija par mūžizglītības iespējām novadā.
Mūžizglītības jaunumi
Iedzīvotājiem noderīga informācija par pensiju sistēmu
Pedagoģiski medicīniskā komisija
Kultūra
Notikumi, pasākumi un iespējas iesaistīties kultūras norisēs.
Ādažu Kultūras centrs
Informācija par Ādažu novada kultūras centru.
Carnikavas kultūras nams "Ozolaine"
Informācija par Carnikavas kultūras namu "Ozolaine".
Carnikavas Novadpētniecības centrs
Informācija par Carnikavas Novadpētniecības centru.
Amatiermākslas kolektīvi Ādažos
Informācija par amatiermākslas kolektīviem Ādažos.
, Ārējā saite
Amatiermākslas kolektīvi Carnikavā
Informācija par amatiermākslas kolektīviem Carnikavā.
, Ārējā saite
Ādažu bibliotēka
Informācija par Ādažu bibliotēku.
Elektroniskais katalogs
, Ārējā saite
Jaunākās grāmatas
Tematisko izstāžu jaunumi
Tematisko izstāžu arhīvs
Preses izdevumi
Statistika
Pasākumi
Bērnu žūrija
Bibliotēkas lietošanas noteikumi
Datoru un interneta lietošanas kārtība
Pakalpojumi
Novadpētniecība
Carnikavas bibliotēka
Informācija par Carnikavas bibliotēku.
Sports
Sporta pasākumi un iespējas novadā/pilsētā.
Jaunumi sportā
Likumi un noteikumi par sportu
Aktuālie likumi un noteikumi par sporta jomu.
Stadioni un sporta laukumi
Ādažu vidusskolas stadions
Carnikavas vidusskolas stadions
Rožu ielas sporta komplekss
Sporta un aktīvās atpūtas parks "Zibeņi"
Multifunkcionālā velotrase jeb pumpu trase
Ādažu Sporta centrs
Informācija par Ādažu Sporta centru.
Aerobikas zāle
Cīņu zāle
Tenisa zāle
Sporta zāle
Stadions
Baseins
Informācija par Ādažu Sporta centra baseinu.
Sporta iespējas novadā
Informācija par sporta iespējām Ādažu novadā.
Peldēšanas skola "Gauja"
Ādažu Bērnu un jaunatnes sporta skola
Ādaži Velo
BMX Ādaži
Dog Sport Carnikava
, Ārējā saite
FBK SĀC
, Ārējā saite
Futbola klubs Ādaži
KSMR Fitness
Mākslas vingrošana Grand Jete
MX Ādaži
Nūjošana
Orientēšanās klubs KĀPA
, Ārējā saite
Sporta klubs Virsotne
Biedrība Sporta klubs APEX
Tenisa centrs Ādaži
Pašvaldības atbalsts sportam
Informācija sportistiem par pieejamo pašvaldības atbalstu sportam.
Jauniešiem
Projekti, aktīvās atpūtas un citas iespējas jauniešiem.
Jaunumi
BJC Ādažos un Carnikavā
Aktivitātes Bērnu un jauniešu centros Ādažos un Carnikavā
Jaunatnes speciālistu kontakti
Jauniešu dome
Dokumenti
Attīstības plāns darbam ar jaunatni 2023.- 2027. gadam
Jaunatnes lietu konsultatīvās komisijas nolikums
Jauniešu domes nolikums
Jauniešu iniciatīvu projekti
Informācija par iespējām jauniešiem veidot savas iniciatīvas, izmantojot pašvaldības atbalstu.
Jaunatnes iniciatīvu projektu konkurss Pumpurs mācību motivācijas palielināšanai
Skolēnu vasaras nodarbinātība
Informācija par vasaras nodarbinātības iespējām bērniem un jauniešiem.
Ādažu novada jauniešu viedokļu izpēte
Ādažu novada jauniešu aptaujas rezultāti.
Tūrisms
Informācija par apskates vietām, naktsmītnēm un kafejnīcām, restorāniem.
, Ārējā saite
Ceļveži
Dabas vērtības novadā
Informācijas stendi novadā
Ādažu aktīvā meža taka
Informācija par Ādažu aktīvo meža taku.
Tūrisma uzņēmējiem
Sabiedriskais transports
Pašvaldības sabiedriskais transports, skolēnu autobuss u.c.
Uzņēmējdarbība
Uzņēmējdarbības vides raksturojums novadā, kā arī dažādi atbalsta mehānismi.
Noderīgi uzņēmējiem
Iepirkumi
Izsoles
Īpašumi
Uzņēmēju karte
Biedrība Ādažu uzņēmēji
Informācija par Ādažu novada uzņēmēju biedrību.
, Ārējā saite
LIAA pārstāvniecība Siguldā
Informācija par atbalsta iespējām Ādažu novada uzņēmējiem.
Uzņēmumu statistika
Statistika par uzņēmumiem.
Mežgarciems
Par uzņēmējdarbības un inovāciju parku “Mežgarciems”
Jaunumi
Aktualitātes par uzņēmējdarbības un inovāciju parku “Mežgarciems”
Kur meklēt
Uzņēmumu meklētājs.
Ādažu novada sociālais dienests
Informācija par sociālo palīdzību novadā.
Atbalsts reemigrantiem
Veselība
Veselības veicināšanas pasākumi, ārstu prakses un cita medicīniska rakstura informācija.
Veselības centri/poliklīnikas
Informācija par novadā esošajām veselības aprūpes iestādēm.
Ģimenes ārstu prakses
Informācijā par novadā esošajām ģimenes ārstu praksēm.
Zobārstniecība
Informācijā par novadā esošajiem zobārstniecības pakalpojumu sniedzējiem.
Veselības veicināšana
Cenu aptaujas
Drošība pie un uz ūdens
, Ārējā saite
Vide
Informācija par dzīvnieku turēšanu, dabas vērtībām un vides pētījumiem pilsētā.
Drošība uz ūdens
Zemes dzīļu izmantošana novadā
Informācija par izsniegtajām zemes dzīļu izmantošanas licencēm/bieži sastopamo derīgo izrakteņu ieguves atļaujām.
Ezeru un upju apsaimniekošana
Informācija par novada ezeru un upju apsaimniekošanu.
Asenizācijas pakalpojumu sniedzēji novadā
Reģistrēto asenizācijas pakalpojumu sniedzēju saraksts.
Atkritumu apsaimniekošana
Informācija par atkritumu apsaimniekošanu novadā.
Šķiroto atkritumu pieņemšanas laukums un šķirošanas punkti
Informācija par šķiroto atkritumu pieņemšanas laukumu Kadagā un šķirošanas punktiem.
Infrastruktūra
Informācija par rotaļu laukumiem, ielām, ceļiem un piejūras autostāvvietām novadā.
Ielas un ceļi
Informācija par ielām un ceļiem novadā.
Piejūras autostāvvietas
Informācija par piejūras autostāvvietām novadā.
Rotaļu un sporta laukumi novadā
Informācija par rotaļu un sporta laukumiem novadā.
Koplietošanas transportlīdzekļu ātruma ierobežojuma un novietošanas aizlieguma zonas
Cilvēki novadā
Intervijas un stāsti par ādažniekiem vai cilvēkiem, kuri savu dzīvi, darbu vai ikdienu ir saistījuši ar Ādažiem.
Goda novadnieks
Informācija par Goda ādažniekiem.
Poligons
Informācija par poligonu Ādažu novadā.
Pakalpojumi
Informācija par pakalpojumiem, ko iestāde klātienē vai elektroniskā veidā sniedz iedzīvotājiem un uzņēmumiem.
E-pakalpojumi
Iesniegt rēķinus elektroniski Ādažu novada domei (uzņēmējiem/privātajiem bērnudārziem
Klientu apkalpošanas centri
Pakalpojumu veidlapas
Pašvaldības pakalpojumi
Valsts iestāžu pakalpojumi VPVKAC
Publiskā ielu tirdzniecība Ādažu novadā
Aktualitātes
Ziņas par pašvaldības aktualitātēm.
Meteoroloģiskās un jūras prognozes
Jaunumi
Aktuāla informācija, paziņojumi medijiem un nozares aktualitātes.
Notikumu kalendārs
Iestādes plānotie aktuālie notikumi un pasākumi.
Ādažu Novada Vēstis
Pašvaldības informatīvais izdevums Ādažu vēstis.
Pašvaldība skaidro
Aktuālākie jautājumi
Foto un video
Notikumu fotogrāfijas un video galerijas.
, Ārējā saite
Sabiedrības līdzdalība
Iespēja iedzīvotājiem un nevalstiskajām organizācijām iesaistīties politikas veidošanas procesā un regulējumu izstrādē.
Iedzīvotāju padomes
Iedzīvotāju aptaujas
, Ārējā saite
Līdzdalības iespējas
Informācija par pašvaldības atbalstu iedzīvotāju iniciatīvām un citiem pašvaldības izsludinātajiem konkursiem.
Sabiedriskās apspriešanas
Paziņojumi par sabiedriskajām apspriešanām novadā.
Ciemu attīstības plāni
Pašvaldību vēlēšanas 2025
Tiesību aktu projekti
Saistošo noteikumu projekti, kas publicēti, lai konsultētos ar iedzīvotājiem.
Parakstu vākšana - aktuālās iniciatīvas
Informācija par aktuālajām iniciatīvām, kam tiek vākti paraksti.
Trauksmes celšana
Saskaņā ar Trauksmes celšanas likumu ikvienam ir tiesības celt trauksmi publiskajā un privātajā sektorā par darba vidē novērotu sabiedrības interešu apdraudējumu.
Atbalsts Ukrainas iedzīvotājiem
Informācija par atbalstu Ukrainas iedzīvotājiem.
Pārtikas un higiēnas preču pakas/Пакети продуктів харчування, пакети засобів гігієни
Ja personai nav iztikas līdzekļu
Ukrainas bēgļiem: Ja nepieciešams darbs / Де шукати підтримку в пошуку роботи?
Kontakti
Domes kontakti
+371 25151340
+371 25151341
E-pasts:
dome
[at]
adazunovads.lv
Gaujas iela 33A, Ādaži, Ādažu novads, LV-2164 un Stacijas iela 5, Carnikava, Carnikavas pagasts Ādažu novads, LV-2163
E-adrese jeb oficiālā elektroniskā adrese ir personalizēta pastkastīte portālā
Latvija.gov.lv
drošai saziņai ar iestādi.
Lasīt vairāk
Centrālās pārvaldes kontakti
Lasīt vairāk
Darbinieku kontakti
Lasīt vairāk
Iedzīvotāju padomju kontakti
Lasīt vairāk
Iestādes
Lasīt vairāk
Pašvaldības rekvizīti
Lasīt vairāk
Aizvērt
Meklēt
Piekļūstamība
Piekļūstams saturs
Viegli lasīt
Fonta izmērs
100%
150%
200%
Kontrasts
Vizuālie rīki
Teksta lupa
Lapas maska
Meklēt vietnē
Atcelt
Aizvērt
Sākums
Pašvaldība
Dome
Domes sēdes
Domes sēde 22.09.2020
Domes sēde 22.09.2020
Atskaņot tekstu
Aizvērt
Dome
Pašvaldības struktūra
Iestādes
Kapitālsabiedrības
Biedrības un nodibinājumi
Budžets
Normatīvie akti
Pašvaldības publiskais pārskats
Attīstība
Projekti
Būvvalde
Iepirkumi
Izsoles
Īpašumi
Vakances
Trauksmes celšana
Korupcijas novēršana un ētika
Nekustamā īpašuma nodoklis
Balss ātrums
Publicēts: 22.09.2020.
Gads
2020
Mēnesis
Septembris
Kategorija
Dome
Darba kārtība:
Lejupielādēt:
Darba kārtība 22.09.2020.
Atjaunināts: 22.09.2025.
Protokols/ audio:
Lejupielādēt:
Protokols nr.18
Pievienots: 05.03.2023.
Lēmumi:
Lejupielādēt:
Nr.210 Par Ādažu novada pašvaldības administratīvās struktūras projekta izstrādi
Pievienots: 05.03.2023.
Lejupielādēt:
Nr.209 Par Ādažu novada Ilgtspējīgas attīstības stratēģijas aktualizāciju
Atjaunināts: 05.02.2025.
Lejupielādēt:
Nr.208 Par nekustamā īpašuma nodokļa atvieglojumiem
Pievienots: 05.03.2023.
Lejupielādēt:
Nr.208 pielikums
Pievienots: 05.03.2023.
Lejupielādēt:
Nr.207 Par nekustamā īpašuma nodokļa atvieglojumiem
Pievienots: 05.03.2023.
Lejupielādēt:
Nr.207 pielikums 1
Pievienots: 05.03.2023.
Lejupielādēt:
Nr.207 pielikums 2
Pievienots: 05.03.2023.
Lejupielādēt:
Nr.206 Par līguma pagarināšanu topogrāfiskās informācijas apstrādei
Pievienots: 05.03.2023.
Lejupielādēt:
Nr.205 Par izmaiņām Ādažu pirmsskolas izglītības iestādes “Strautiņš” struktūrā
Pievienots: 05.03.2023.
Lejupielādēt:
Nr.204 Par telpu nomu ĀBJSS vieglatlētikas nodaļas nodarbībām
Pievienots: 05.03.2023.
Lejupielādēt:
Nr.203 Par grozījumiem Ādažu novada domes 04.09.2018. lēmumā Nr.198 “Par nomas maksas noteikšanu telpām Ādažu vidusskolā”
Pievienots: 05.03.2023.
Lejupielādēt:
Nr.202 Par sadarbības līguma slēgšanu ar nodibinājumu “Iespējamā misija”
Pievienots: 05.03.2023.
Lejupielādēt:
Nr.202 pielikums
Atjaunināts: 19.12.2023.
Lejupielādēt:
Nr.201 Par dalību Erasmus+ programmas projektā “Apvienotās STEAM aktīvās mācības, kas gūtas no jūras”
Pievienots: 05.03.2023.
Lejupielādēt:
Nr.200 Par dalību Erasmus+ programmas projektā “Ēd pareizi, kusties pareizi un jūties labi”
Pievienots: 05.03.2023.
Lejupielādēt:
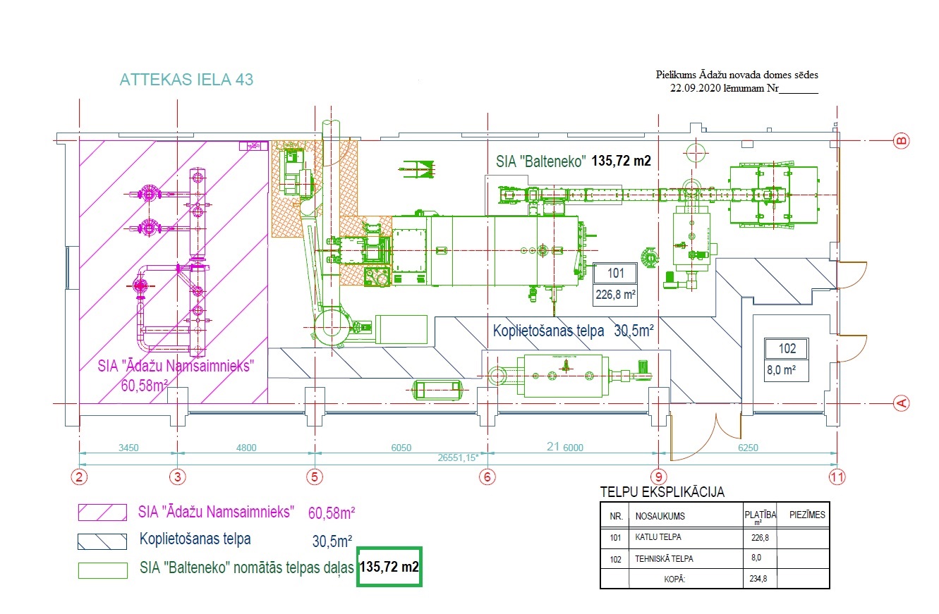
Nr.199 Par nomas līguma pagarināšanu katlu mājai Attekas iela 43
Atjaunināts: 23.01.2025.
Lejupielādēt:
Nr.199 pielikums
Pievienots: 05.03.2023.
Lejupielādēt:
Nr.198 Par sadarbības līgumu ar Rīgas domi globālas navigācijas bāzes stacijas izvietošanai
Atjaunināts: 02.12.2024.
Lejupielādēt:
Nr.197 Par zemes ierīcības projektu nekustamajam īpašumam “Dzērves”
Pievienots: 05.03.2023.
Lejupielādēt:
Nr.196 Par zemes ierīcības projektu nekustamajam īpašumam “Pakalni”
Pievienots: 05.03.2023.
Lejupielādēt:
Nr.196 pielikums
Pievienots: 05.03.2023.
Lejupielādēt:
Nr.195 Par pašvaldības nozīmes ielas statusa piešķiršanu Inču–Ziemeļbullas ielai
Pievienots: 05.03.2023.
Drukāt lapu
Dalīties
Dalīties ar šīs lapas saturu!
Izvēlies sociālo tīklu, kurā Tu vēlies dalīties ar šīs lapas saturu.
Facebook
X / Twitter
Linkedin
Threads